WOHNANLAGE KRIFTEL

 

Auf einem schmalen Grundstück am nördlichen Ortsrand der Gemeinde Kriftel ist eine Familienunterkunft für 40 Asylbewerber in einer modularen Bauweise entstanden.

 

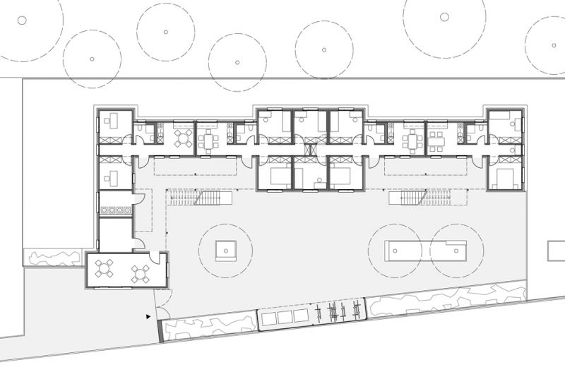
Die Wohnanlage ist als 2-geschossiges, L-förmiges Gebäude mit 8 Wohnungen, einer Büroeinheit für Sozialarbeiter und Hausmeister, einem Gemeinschaftsraum, einer Waschküche und einem Haustechnikraum konzipiert worden.

 

Die Wohnungen sind in drei unterschiedlichen Größen von 43-55 m² WoFl. ausgelegt worden, um eine Belegung für kleine und größere Familien zu ermöglichen. Jede Wohnung verfügt über ein eigenes Bad, eine Wohnküche und separate Schlafräume für je zwei Personen.

 

Um eine flexible Belegung je Familiengröße zu ermöglichen, kann bei jeweils einer Wohnung pro Geschoss ein Schlafraum aus der Nachbarwohnung zugeschaltet werden.

 

Die Erschließung des Gebäudes erfolgt über einen zentralen Hof, der als Begegnungs- und Spielort dient.

 

Die Obergeschosse sind über zwei dem Gebäude vorgestellte Laubengänge zu erreichen.

 

Das Gebäude besteht aus Raummodulen in Stahlbauweise. Die Außenfassade ist mit einer vorgehängten, hinterlüfteten und zusätzlich gedämmten Fassade aus lasierten Holzplatten bekleidet. Das Dach ist mit einer leichten Metallkonstruktion, die auch die Laubengänge überspannt, hergestellt worden.

 

Als Nachnutzung kann das Gebäude später auch als kostengünstiger Wohnraum genutzt werden.

 

Realisation: 7/2013 - 8/2014, Leistungsumfang (LPH): 1-8, Nettogrundfläche (NGF): 640 m², Bruttorauminhalt (BRI): 2.473 m³

 


Zurück